Harbour Isle Luxury Condo – A sanctuary waiting to be discovered
What Makes This Special: ARCHITECTURAL DIGEST PERFECTION MEETS WATERFRONT LUXURY…
$725,000
1578, Thumb Point Drive, Fort Pierce, Saint Lucie County, Florida, 34949, United States
For Sale
$1,850,000 Sold with Island Oasis
This enchanting Coastal Cottage, offered together with its private Island Oasis, invites you to experience the ultimate seaside lifestyle. The coastal Cottage is a separate structure with endless potential—ideal as a guesthouse, in-law suite, private office, or even an income-producing rental.
Where relaxation meets adventure, every moment here is infused with coastal magic. From the moment you arrive, you’ll be drawn in by the cottage’s vibrant facade framed by swaying palms and seaside colors that echo the spirit of the coast.
Step inside to a haven of comfort and elegance, where modern amenities blend effortlessly with breezy coastal charm. The open-concept layout welcomes you with a light-filled living space featuring plush seating and serene décor, creating the perfect retreat after a sun-soaked day.
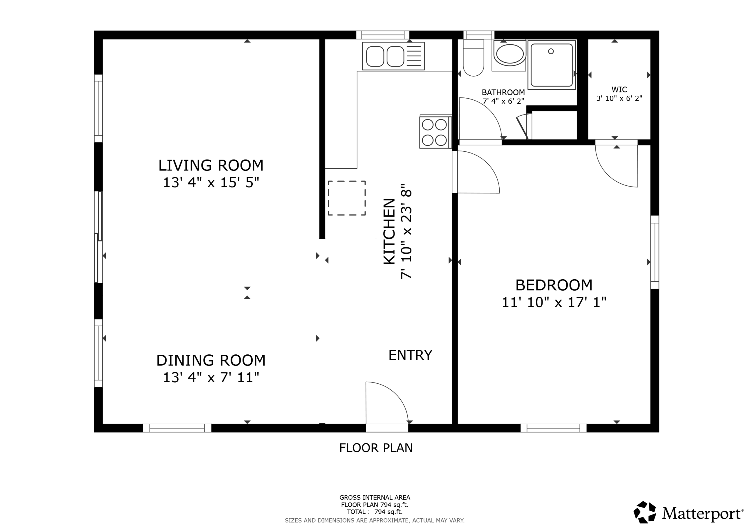
In the heart of the home, the living room offers a cozy, inviting setting—perfect for quiet evenings, movie nights, or simply basking in the natural light streaming through the windows.
The adjacent kitchen is a culinary delight, complete with stainless steel appliances, granite countertops, and generous cabinetry. Whether you’re preparing a fresh catch or your favorite family meal, this kitchen combines style and function for effortless entertaining. Gather around the dining area to share laughter, stories, and unforgettable seaside meals.
When it’s time to retire for the night, The Coastal Cottage offers two beautifully appointed sleeping areas, each thoughtfully designed for exceptional comfort. The master bedroom features a luxurious king-sized bed with an organic mattress dressed in soft linens, promising restful nights and peaceful slumber. The living room bedroom provides a queen-sized murphy bed and sofa bed—perfect for guests, family, or a cozy night in. Both spaces are tastefully decorated in soothing coastal tones and include ample storage for your belongings. Enjoy blissful nights as you drift to sleep to the gentle rhythm of swaying palms, then awaken rejuvenated and ready to embrace another perfect day in paradise.
Step outside to your private patio and immerse yourself in the natural beauty that surrounds you. Enjoy your morning coffee in the gentle warmth of the sun or unwind in the evening with a cool drink as the sky transforms into a canvas of orange and pink during sunset. Every moment here captures the effortless elegance and serenity of coastal living.
Nestled in a sought-after coastal community, The Coastal Cottage places you moments from pristine beaches, vibrant marinas, and renowned local restaurants. Enjoy leisurely strolls along sandy shores, embark on aquatic adventures just steps from your door, and savor the convenience of nearby shopping and entertainment. This is more than a residence—it’s a turnkey invitation to embrace the essence of coastal living, where every day feels like a vacation and memories are waiting to be made.
What Makes This Special: ARCHITECTURAL DIGEST PERFECTION MEETS WATERFRONT LUXURY…
$725,000
COASTAL CHARM MEETS MODERN COMFORT – Beautifully upgraded 4BR/2BA beach…
$695,000